Ferienhaus Schäfer-Bultmann
mit Photovoltaik-Anlage
Planung 2006 - 2007
Niederzissen, An der Ölmühle
Am Ortsrand von Niederzissen entstand ein eher ungewöhnliches
Projekt. Die benachbarten Grundstücke wiesen im hinteren Bereich
bestehende Nebengebäude mit geringem Nutzwert auf.
Dem Wunsch der Bauherrin entsprechend, sollte aus dem heterogenen
Bestand kurzfristig ein Gebäude entstehen, das einer Photovoltaik
- Anlage die entsprechende Dachfläche bot und die innerhalb von 5
Monaten ans Netz gehen sollte. Die bestehenden Dächer waren
aufgrund ihrer Ausrichtung zur Solarnutzung nicht geeignet und auch
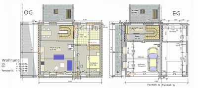
für den gewünschten Wohnraum nicht ausbaufähig. Es wurde
eine komplett neue Gebäudetypologie entworfen, die der PV-Anlage
Rechnung trug, als auch die vorderen Haupthäuser nicht
verschattete. Der Neubau erhielt deshalb ein versetztes Pultdach mit
einer größeren Süddachfläche, die Terrasse ein
weitere Dachfläche, die zusammen Platz für eine PV-Anlage mit
über 10 kw peak ermöglichen.
Der spätere Ausbau bietet Platz für ca. 75 m2, die als Ferien- oder Einliegerwohnung genutzt werden können.





